Rob Dubois

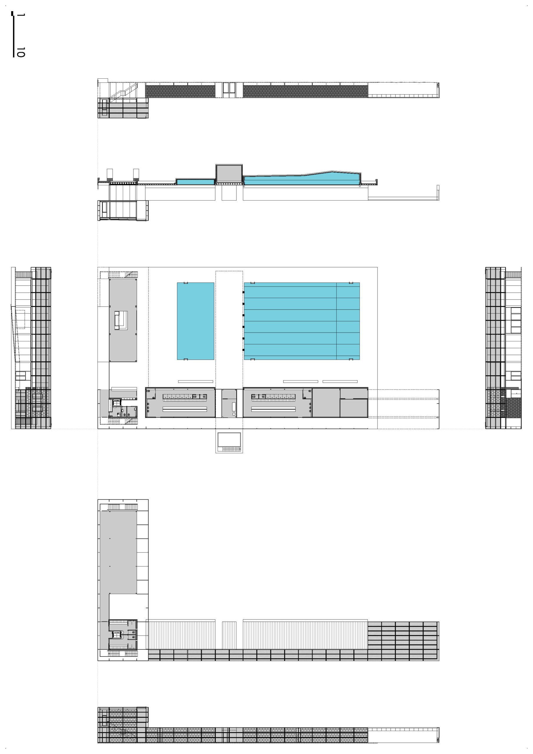
Piscina Municipal Olot

Categoría

Arquitectura

Edificio dibujado por el conjunto DKHH (Rob Dubois, Shuichi kobari, Jordi Hidalgo & Daniela Hartmann). Cuatro amigos que a veces se juntan para participar en concursos. En sus formas y volúmenes la piscina municipal de Olot refleja la transición de la geometría rectangular de la urbanización hacia las líneas orgánicas del paisaje de la Garotxa.