Rob Dubois

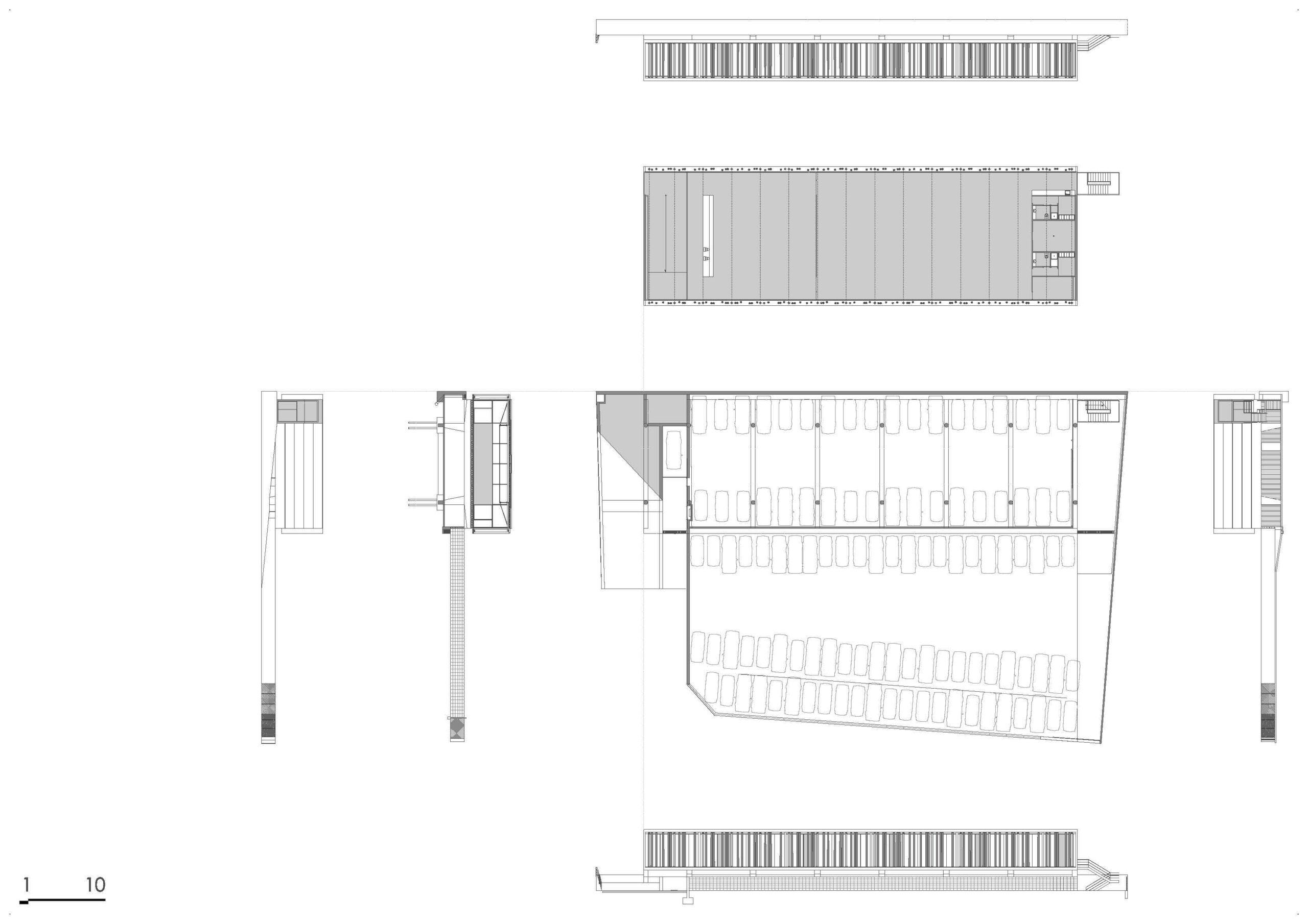
Dipòsit Municipal Montcada

Categoría

Arquitectura

FECHA

1999 - 2003

El Ayuntamiento de Montcada y Reixac aprovecha un solar en su zona industrial para los coches que sobran en el área urbana y al mismo tiempo sitúa allí un taller/almacén para promover el segundo uso de cualquier producto. Toda la planta baja para los coches y encima de ella una nave sobre las columnas con una generosa entrada de luz natural filtrada por un persiana de postes de teléfono reutilizados.