Rob Dubois

CRBMC

Categoría

Arquitectura

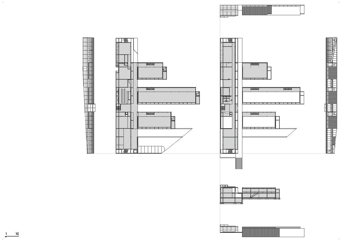
Una competición de una semana, dibujos listos en 4 meses y una duración de obras de construcción de un año y medio de construcción: 2 años en total desde el principio hasta el final de un edificio donde la Generalitat de Catalunya hace restaurar pinturas, esculturas, libros, muebles etc. de sus colecciones de arte. La planta tiene forma un peine: la larga base para las actividades administrativas, laboratorios y un gran estudio para fotografía; los dedos, divididos por los patios, contienen los talleres de restauración donde la entrada de luz directa está bloqueada por razones obvias.