Rob Dubois

Casa Mora

Categoría

Arquitectura

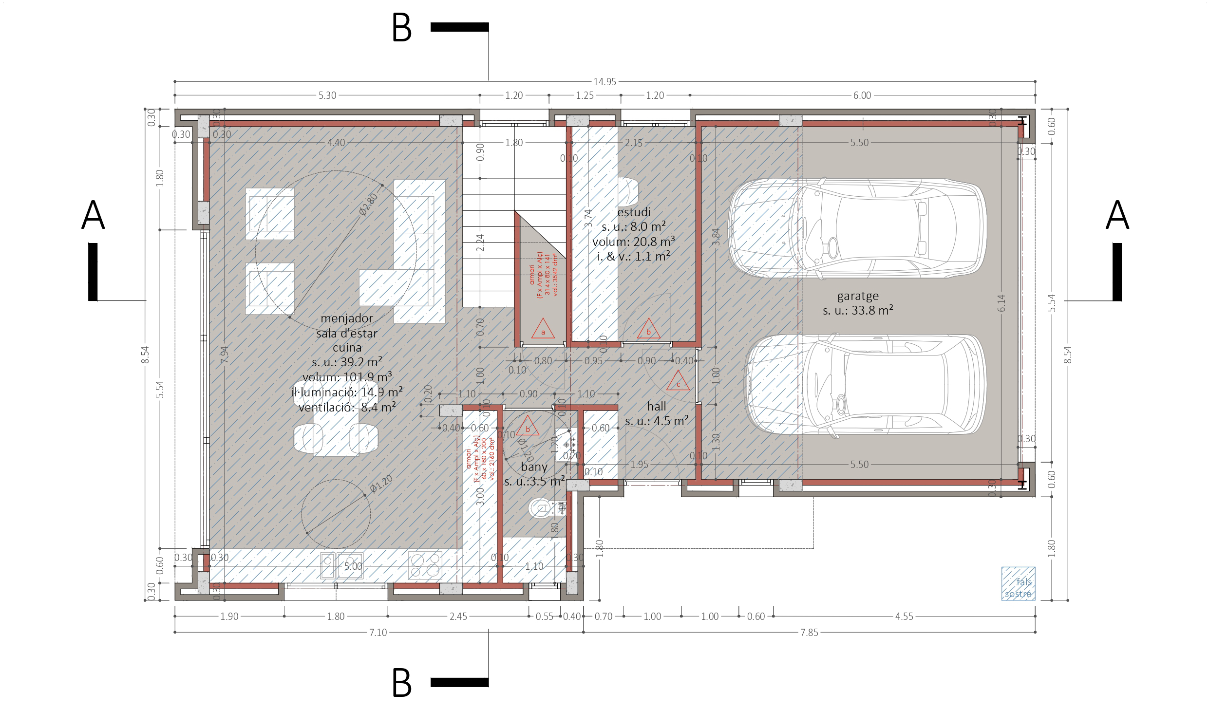
Un edificio aislado, formado por una planta baja y planta piso, y una cubierta inclinada a dos aguas. La estructura de la planta baja está formada por pilares de hormigón armado y un forjado unidireccional. La planta superior está formada por pilares de perfiles metálicos con una estructura de de vigas de madera con placas thermochip para las cubiertas. Las fachadas que rodean la casa serán de obra vista y las cubiertas se revisten con tejas cerámicas. En definitiva, una casa casi tradicional, pero no del todo.