Rob Dubois

Casa Martínez - Martín

Categoría

Arquitectura

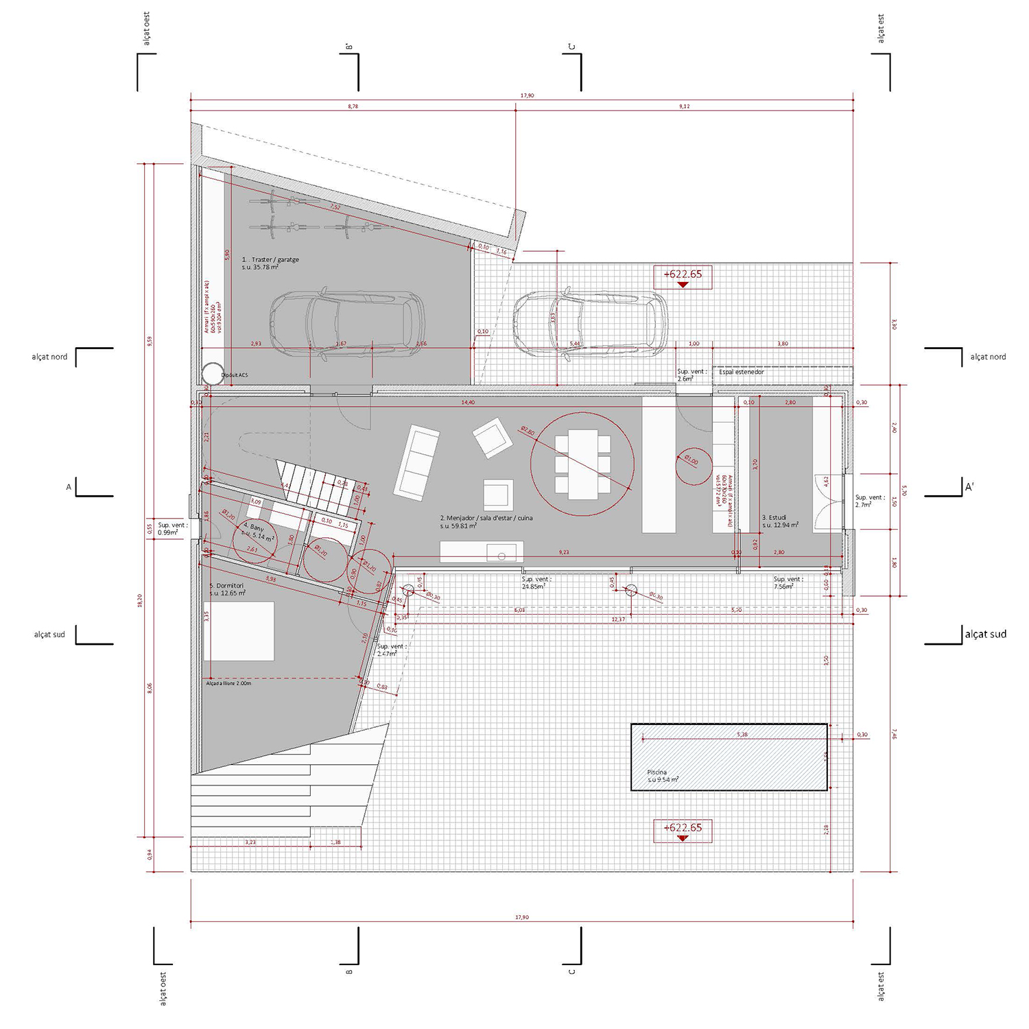
Desde la calle se accede a la vivienda a través de la primera planta, que presenta una forma geométrica de ‘T’. En la parte vertical de la ‘T’ se encuentra el cuerpo de la edificación con las piezas habitables. El acceso principal da directamente a dos escaleras, una interior y otra en el exterior, para bajar a la planta baja. En esta planta encontramos el comedor-sala de estar-cocina, un estudio, un baño y un dormitorio. Todas estas estancias tienen vistas al generoso solar. La parte vertical de la ‘T’ está formada por una cubierta a dos aguas que cubre parte del cuerpo central y crea dos porches en sus dos extremos.