Rob Dubois

Casa Draper

Categoría

Arquitectura

Fecha

2006

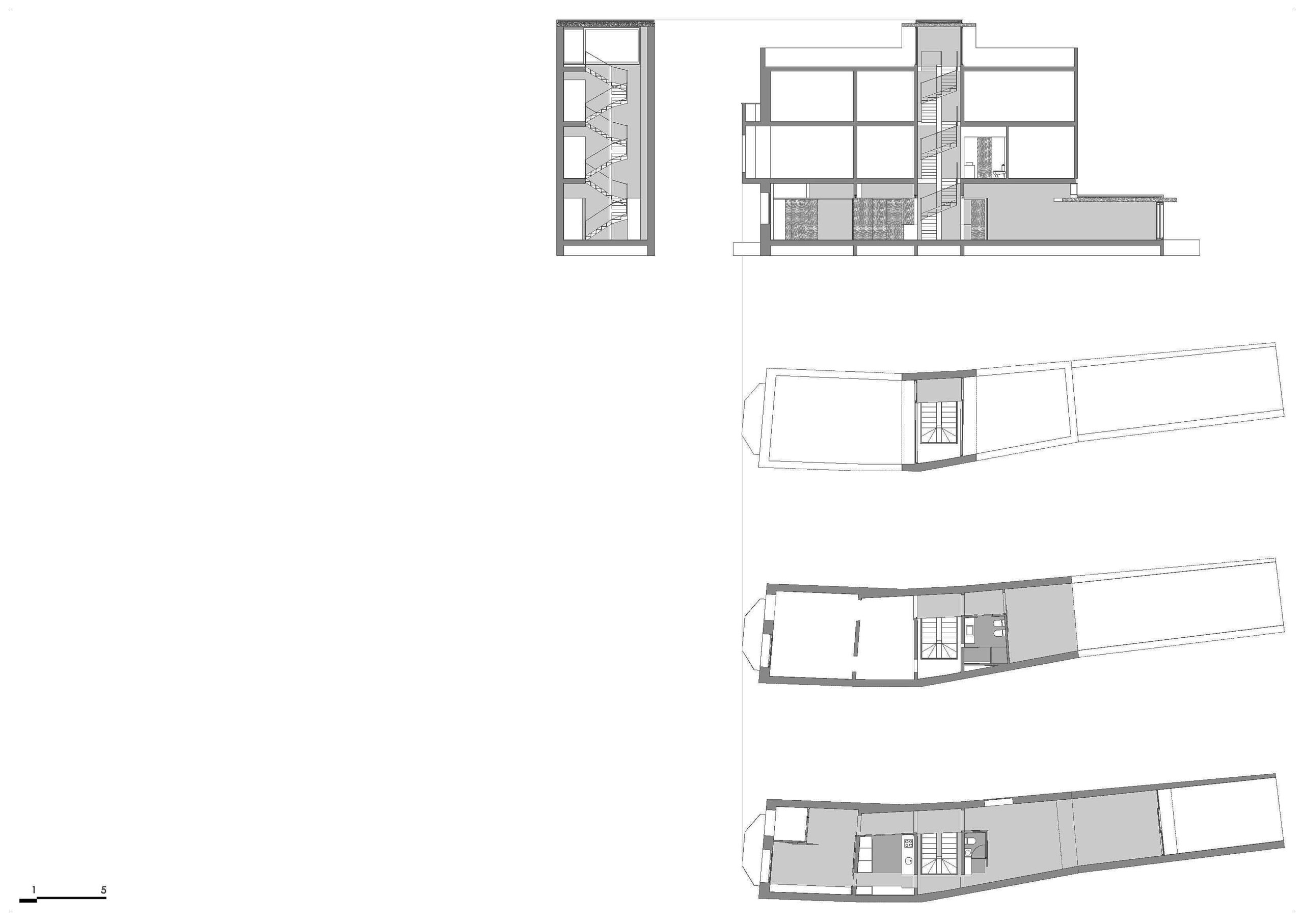
Esto es también una reforma de una casa grande en el centro de Sant Celoni, hemos cambiado la escalera, esta vez con huellas de vidrio que lleva la luz cenital a la planta baja. Al vaciar la planta baja hemos reorganizado los servicios esenciales (cocina y baño) en una cuidada caja de madera independiente.