Rob Dubois

Casa Dou

Categoría

Arquitectura

Fecha

2005 - 2008

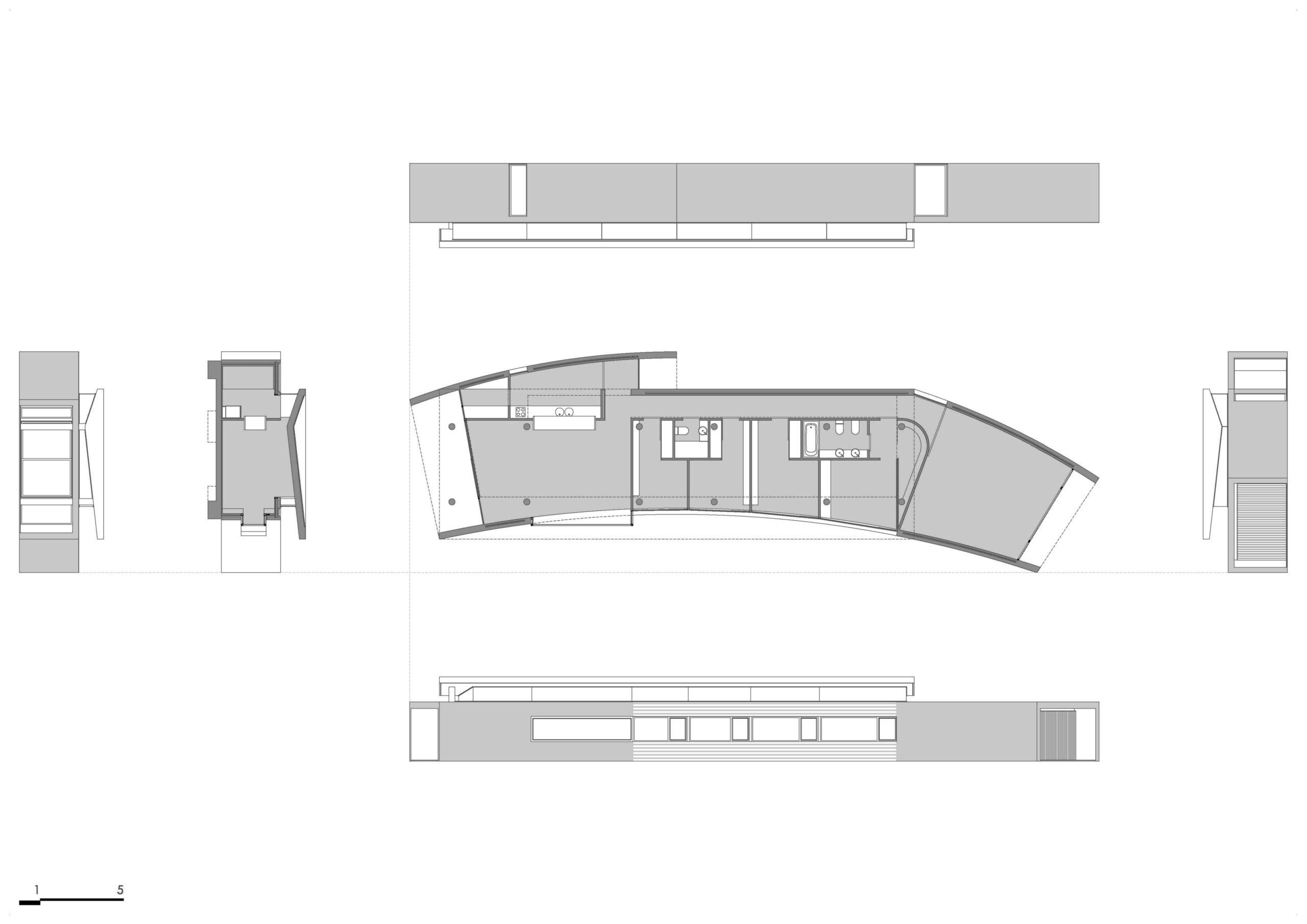
Una casa alargada donde todos los aposentos están a la primera fila para disfrutar de una vista fenomenal del macizo del Montseny. La obligatoria cubierta a dos aguas, una imposición de las regulaciones urbanísticas de la zona, se ha invertido literalmente para dejar entrar una banda de la luz del sur que se encuentra a la parte posterior de la casa.