Rob Dubois

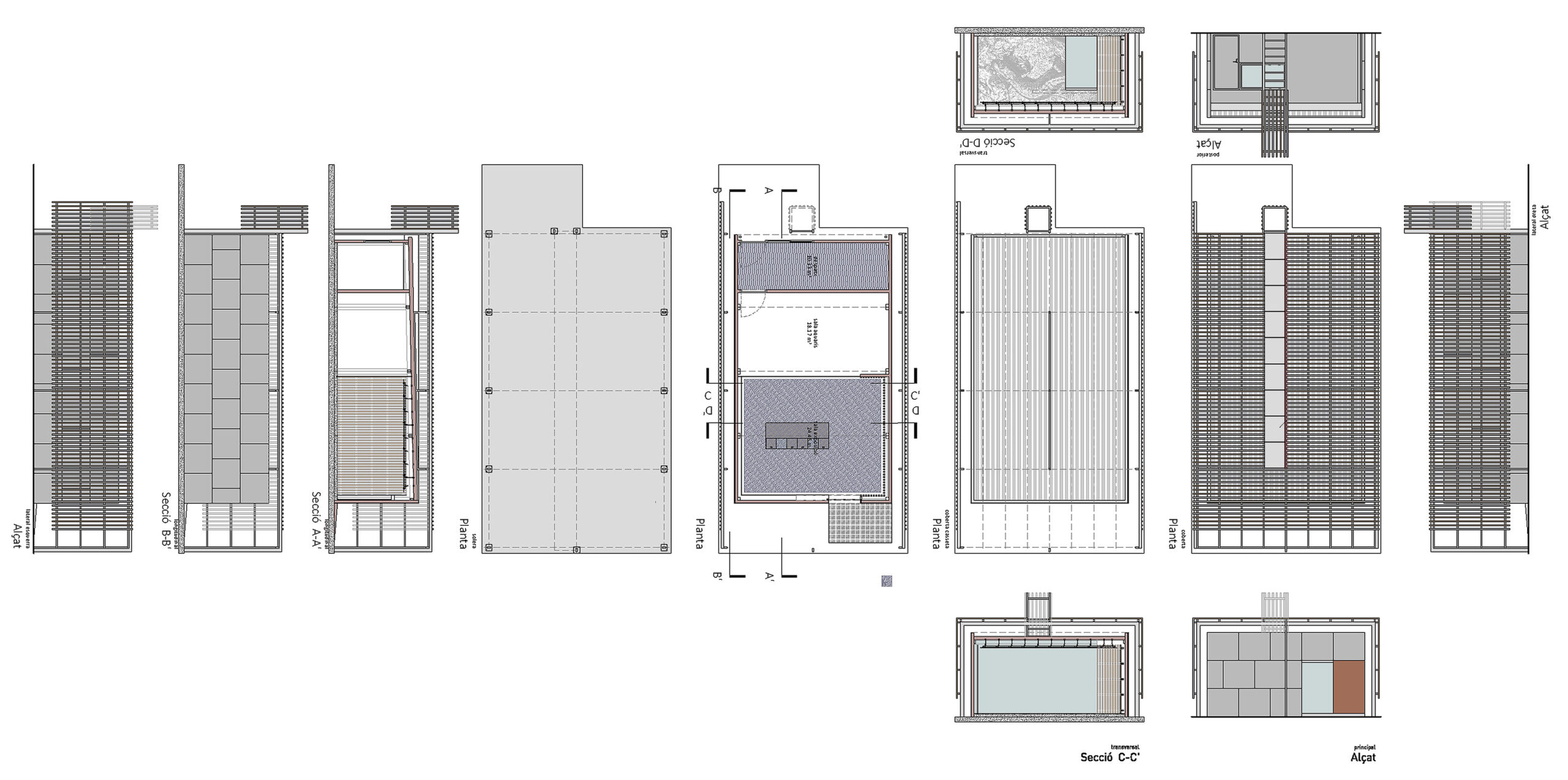
BSM Pavelló Tritons

Categoría

Arquitectura

El descubrimiento de un nuevo tipo de tritón en el Montseny ha puesto en marcha todo un programa para su protección con la ayuda económica de la comunidad Europea. Al ZOO de Barcelona se ha erigido un pabellón con elementos prefabricados para reducir al máximo las consecuencias de su construcción (sobre todo ruido) a los animales del parque, y que tiene como tarea la explicación al público el cómo y qué de esta protección de este tritón único al mundo.