Rob Dubois

Arxiu Históric Comarcal

Categoría

Arquitectura

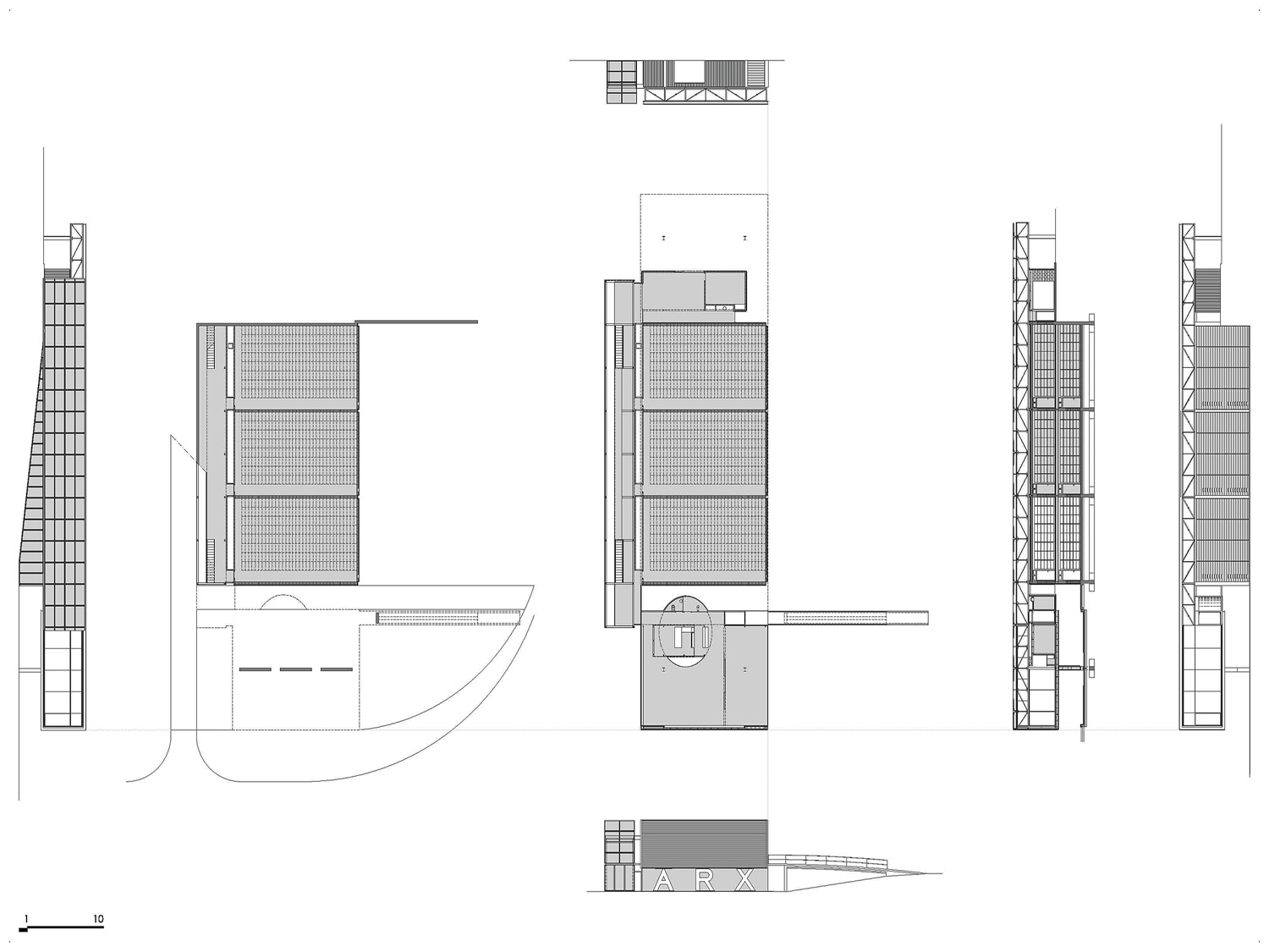
Después de ganar un concurso en dos etapas nos llevó a construir un archivo de documentos con un programa simple pero desafiante: muchos metros cuadrados de espacio cerrado sin una entrada de luz y un área adjuntado para el público. El edificio ha sido estirado para romper su monolitismo y la ubicación del área de servicio y la sala pública ayuda a proteger el volumen principal contra las inclemencias, especialmente el sol, del clima local.