Rob Dubois

Apartaments Les Torres

Categoría

Arquitectura

Fecha

2005 - 2009

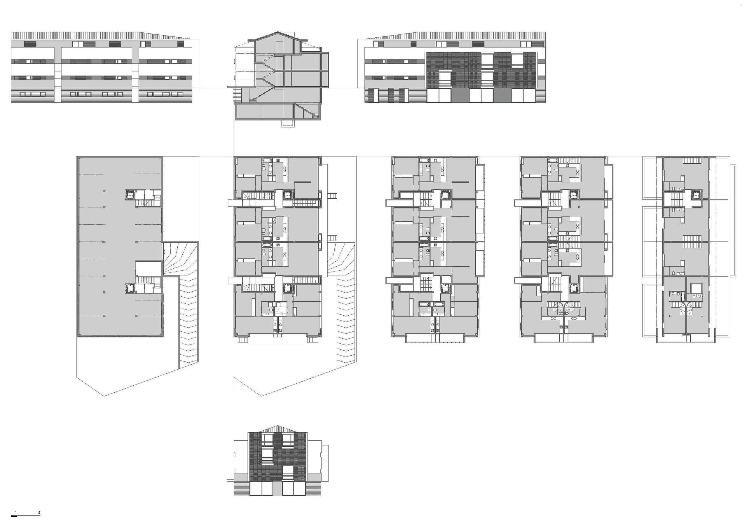
Conforme con el código de edificación del ayuntamiento aquí uno podría realizar: 'planta baja + 2, una ocupación máxima de 450 m² (15 x 30) del solar con un total de 15 apartamentos para todo el bloque'. Es lo que hemos hecho. Nuestro trabajo ha sido articular el volumen del bloque dentro de estas condiciones y romper con el lenguaje sumiso de las alzados de los otros bloques del barrio.